Beschrijving
Open huis op donderdag 19 februari 2026 van 15.00 uur tot 16.30 uur. Je bent welkom zonder afspraak. Individuele bezichtigingen zijn uiteraard ook mogelijk, je kunt daarvoor bellen om een afspraak in te plannen.
Instapklare woning met praktijkruimte en carport met vrij uitzicht over de Eendenplas
Ben je op zoek naar een woning die helemaal af is, waar je zó in kunt trekken en elke dag kunt genieten van ruimte, comfort en een prachtige ligging? Dan is deze instapklare tussenwoning aan de Ganzenwei 9 precies wat je zoekt.
Met een eigen carport, berging én een volledig ingerichte praktijkruimte biedt deze woning een unieke combinatie van wonen en werken. Gelegen aan de rand van de rustige en groene wijk De Eendenplas woon je hier in alle rust, terwijl alle voorzieningen binnen handbereik zijn.
Een woning om verliefd op te worden
Deze moderne eengezinswoning uit 2003 is tot in de puntjes verzorgd en straalt kwaliteit en comfort uit. Met een woonoppervlakte van maar liefst 141 m² is er volop ruimte voor jou en je gezin.
Dankzij energielabel A, 8 zonnepanelen en het uitstekende onderhoud kun je hier zorgeloos en duurzaam wonen. De actieve Vereniging van Eigenaren neemt het onderhoud zoals onder andere het buitenschilderwerk en de opstalverzekering uit handen, waardoor jij alleen hoeft te genieten.
Wat maakt deze woning zo bijzonder?
• Royale woonkamer met grote dubbele openslaande deuren naar de tuin
• Moderne keuken met strak design en hoogwaardige inbouwapparatuur
• Vier ruime slaapkamers, met mogelijkheid tot een vijfde slaapkamer
• Complete badkamer met ruime inloopdouche, wastafelmeubel en tweede toilet
• Zeer diepe achtertuin op het westen met berging en afsluitbare carport met afstandsbediening
• Separate praktijkruimte van circa 20 m² met eigen keuken, wachtruimte en airco
• Parkeren op eigen terrein
Hier woon je niet alleen comfortabel, maar ook flexibel. Ideaal voor gezinnen én voor zelfstandig ondernemers.
Duurzaam en onderhoudsvrij wonen
Met 8 zonnepanelen profiteer je van lage energiekosten en draag je bij aan een duurzame toekomst. Dankzij de actieve VvE hoef je je geen zorgen te maken over groot onderhoud. Voor slechts € 90,90 per maand geniet je van complete gemoedsrust.
Perfecte ligging in Gorinchem
Deze woning combineert rust, groen en bereikbaarheid op een unieke manier.
• Gelegen in een kindvriendelijke en groene wijk
• Speelvoorzieningen in de directe omgeving
• Scholen en kinderopvang op loopafstand
• Station op circa 10 minuten lopen
• Historisch centrum op ongeveer 20 minuten lopen
• Winkelcentrum op 3 minuten rijden of 10 minuten fietsen
Hier woon je in een rustige omgeving met alles wat je nodig hebt binnen handbereik.
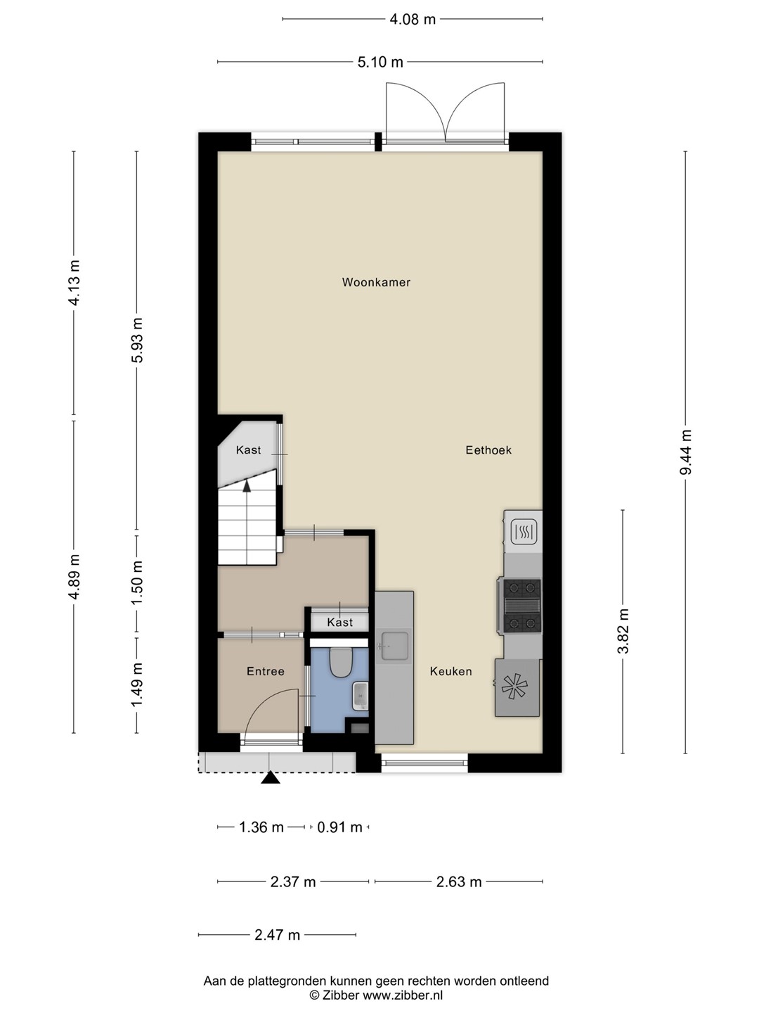
Indeling
Begane grond
Via de ruime entree kom je in het tussenportaal met toegang tot de woonkamer, toiletruimte, meterkast en trapopgang. De lichte woonkamer is voorzien van airconditioning en heeft aan de achterzijde een prachtig uitzicht op de tuin. De halfopen keuken uit 2023 is ruim opgezet en geniet van veel daglicht dankzij het grote raam waardoor je een vrij uitzicht hebt op de Eendenplas.
Eerste verdieping
Overloop met toegang tot drie ruime slaapkamers met inbouwkasten en een luxe badkamer. De badkamer is voorzien van een douchecabine, wastafelmeubel en tweede toilet.
Tweede verdieping
Verrassend ruime verdieping met grote overloop en twee extra slaapkamers, waarvan één met dakkapel. Hier bevinden zich ook de wasmachineopstelling en de CV ketel.
Tuin
Via de openslaande deuren bereik je de zonnige achtertuin op het westen. Dankzij beschutte ligging geniet je hier het hele jaar door van privacy en comfort. Achterin bevinden zich de stenen berging, de carport en de praktijkruimte..
Bijzonderheden
• Bouwjaar: 2003
• Energielabel: A, HR++ glas, 8 zonnepanelen, cv ketel Intergas uit 2024
• Woonoppervlak: 141 m²
• Bruto vloeroppervlak: 208 m²
• Inhoud: 532 m³
• Geschat perceeloppervlak: circa 200 m²
• VvE bijdrage: € 90,90 per maand
• Afsluitbare carport met afstandsbediening op eigen terrein
• Praktijkruimte met eigen voorzieningen
• Instapklaar en uitstekend onderhouden
• Laatst geschilderd: 2024
• Oplevering in overleg
Plan jouw bezichtiging
Woningen met deze combinatie van ruimte, duurzaamheid, comfort en locatie zijn zeldzaam. Laat deze kans niet aan je voorbijgaan en plan vandaag nog een bezichtiging.
Wij laten je deze prachtige woning graag persoonlijk ervaren.