Nieuw in verkoop: Tapperstraat 32, 4204 TT Gorinchem
Nieuw in verkoop: Tapperstraat 32, 4204 TT Gorinchem
Nieuw in verkoop: Tapperstraat 32, 4204 TT Gorinchem
Nieuw in verkoop C

Tapperstraat 32, 4204 TT Gorinchem

€ 385.000,- k.k.

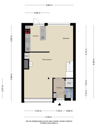
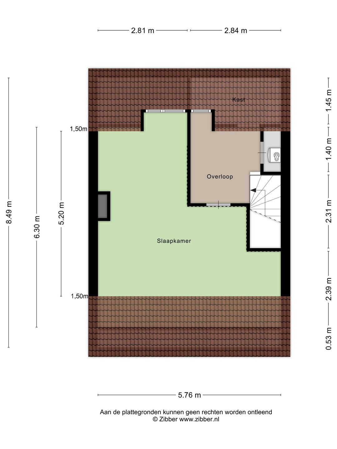
Beschrijving Tapperstraat 32

Tijd voor een nieuw woonavontuur?

Ben jij op zoek naar een ruime eengezinswoning in een fijne, kindvriendelijke woonomgeving? Zoek niet verder! Welkom aan de Tapperstraat 32 in Gorinchem – een heerlijke tussenwoning vol mogelijkheden, ruimte en comfort.

Waarom je hier meteen verliefd op wor...

Kenmerken

Type object Woonhuis, eengezinswoning, tussenwoning
Bouwperiode 1970
Status Nieuw in verkoop
Aangeboden sinds Donderdag 2 oktober 2025

Tapperstraat 32 bekijken?

Wij plannen graag een bezichtiging met je in. Tijdens de bezichtiging vertelt een makelaar alles wat je wilt weten.

Sluiten

Recent bekeken