Beschrijving
Vrijstaand genieten in een recreatiebungalow aan het water met eigen zwembad en jacuzzi op een royaal perceel van 357 m2
Welkom op Parc Merwede – waar rust, ruimte en comfort samenkomen. Deze sfeervolle, vrijstaande recreatiebungalow ligt op een prachtig perceel van 357 m², midden in het groen. Hier ervaart u elke dag dat heerlijke buitengevoel – het hele jaar door!
De verzorgde tuin met meerdere zitjes, ligging aan het water én een eigen zwembad en jacuzzi maken dit de perfecte plek om te ontspannen. Zon, schaduw, privacy: u vindt het hier allemaal.
Comfortabel wonen, direct genieten
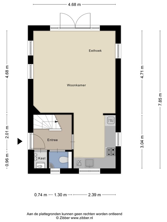
Binnenkomst? Dat doet u in stijl! Een ruime hal met toilet en open trap verwelkomt u.
De lichte woonkamer is voorzien van vloerverwarming en openslaande deuren naar de tuin – een heerlijke plek om tot rust te komen. De open keuken beschikt over moderne inbouwapparatuur, ideaal voor gezellige diners of een goed glas wijn met uitzicht op het groen.
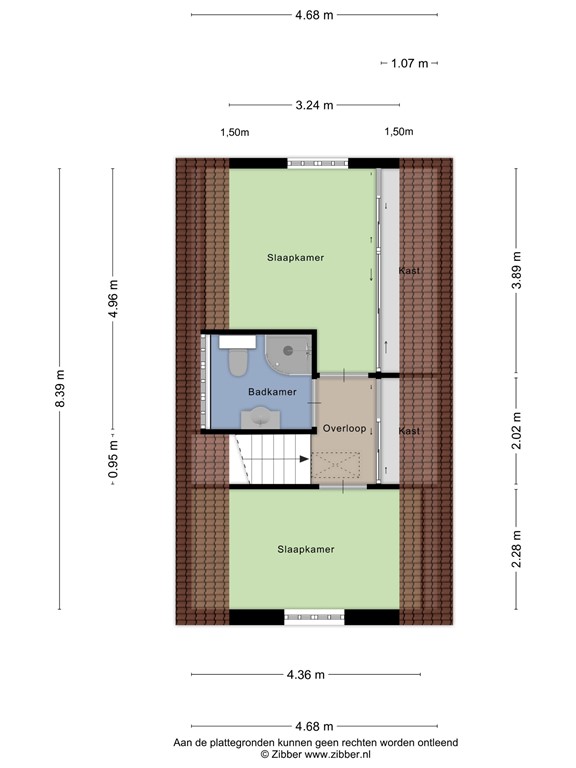
Boven vindt u twee ruime slaapkamers en een nette badkamer met tweede toilet, douchehoek, badkamermeubel en is voorzien van vloerverwarming.
Buiten staat een vrijstaande houten berging met pannendak, en u parkeert met gemak twee auto’s op eigen terrein.
Waarom u hier wilt wonen
- Vrijstaande woning op ruim perceel (357 m²)
- Energielabel B (voorlopig), 9 zonnepanelen
- Vloerverwarming op begane grond en badkamer
- Kunststof kozijnen & dubbel glas
- Fraai aangelegde tuin aan het water met eigen zwembad en jacuzzi
- Eigen parkeerplaatsen & berging
- Verwarming via HR-combiketel
- Jaarlijkse parkbijdrage: € 1.521,-
Rustig én centraal gelegen
Parc Merwede is een kleinschalig, groen recreatiepark van circa 10 hectare, direct aan het Merwedekanaal. Watersportliefhebbers voelen zich hier meteen thuis dankzij de prachtige waterwegen.
Toch woont u hier verrassend centraal: binnen 5 minuten zit u op de A27, met snelle verbindingen naar Utrecht, Rotterdam en Den Bosch.
De omgeving heeft veel mogelijkheden om te fietsen, wandelen, varen of een terrasje te pakken in gezellige stadjes als Leerdam, Gorinchem en Vianen.
Wilt u vrijstaand wonen met uitzicht, rust en ruimte ?
Neem dan snel contact met ons op voor een bezichtiging.
Deze woning moet u gezien én gevoeld hebben!
Plattegronden
177787633_1584663_schee_begane_grond_first_design_20251008_1337e2.jpg
177787633_1584663_schee_eerste_verdiepi_first_design_20251008_61d03e.jpg
177787633_1584663_schee_berging_first_design_20251008_fc6d52.jpg
177787633_1584663_schee_berging_first_design_20251008_e94223.jpg
177787633_1584663_schee_zolder_first_design_20251008_ca0c6e.jpg
177787633-288895483-se-140587537-1759912988419.png
177787633-288918388-se-140587537-1759912988419.png
177787633-288922663-se-140587537-1759912988419.png
177787633-288922918-se-140587537-1759912988419.png
177787633-288923878-se-140587537-1759912988419.png