Beschrijving
        
Wonen in stijl, midden in het bruisende hart van Gorinchem!
Droom je van een sfeervolle en modern afgewerkte woning met alles wat het centrum van Gorinchem te bieden heeft binnen handbereik? Dan is deze prachtige maisonnette aan de Rosmolensteeg 72 precies wat je zoekt! Gelegen op een toplocatie in het levendige historische centrum, biedt deze woning je een perfecte combinatie van comfort, ruimte én gemak.
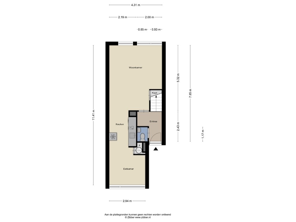
Deze sfeervolle 3-kamer maisonnette is met zorg en aandacht onderhouden en volledig instapklaar. Zodra je binnenstapt, voel je de warme, uitnodigende sfeer. De royale woonkamer van 37 m² biedt meer dan voldoende ruimte voor zowel een gezellige zithoek als een ruime eethoek. De stijlvolle open keuken, voorzien van strakke witte kastfronten en hoogwaardige inbouwapparatuur, maakt koken tot een dagelijks plezier. Een ideale plek om vrienden en familie te ontvangen!
Op de bovenverdieping vind je twee ruime slaapkamers van elk 14 m². Eén slaapkamer heeft een dakraam én een dakkapel, ideaal als sfeervolle slaapkamer of inspirerende werkplek. De tweede slaapkamer biedt directe toegang tot het zonnige dakterras, gelegen op het zuidoosten. Stel je voor: heerlijk genieten met uitzicht op de kerktoren terwijl je tot rust komt met een drankje of een goed boek.
De badkamer tussen beide slaapkamers is afgewerkt in rustige, neutrale tinten en uitgerust met een bad, een tweede toilet, een modern badkamermeubel met spiegelkast en aansluitingen voor wasmachine en droger.
Ook aan praktische zaken is gedacht. Je hebt de beschikking over een eigen berging van 6 m², ideaal voor fietsen of opslag. 
Parkeerplaats
En uniek voor het centrum van Gorinchem: je kunt je eigen parkeerplaats aanschaffen op het afgesloten parkeerdek! Nooit meer zoeken naar een parkeerplekje, gewoon direct parkeren bij je thuis voor een meerprijs van slechts € 20.000,- k.k.
Ligging
De ligging is fantastisch: je wandelt zo vanuit je woning naar de gezellige terrassen, winkels, en restaurants. Supermarkt, scholen en openbaar vervoer bevinden zich allemaal op loopafstand. En met uitvalswegen naar de A15 en A27 ben je binnen no-time in steden zoals Utrecht, Rotterdam of Breda.
Algemene kenmerken:
•	Bouwjaar: 1977
•	Woonoppervlakte: ca. 81 m²
•	Royaal en zonnig dakterras met uitzicht
•	Eigen berging en optionele parkeerplaats (€ 20.000,- k.k.)
•	Toplocatie in de historische binnenstad van Gorinchem
•	Energielabel C, HR ++ glas
•	De VvE bijdrage Rosmolensteeg circa € 202,- per maand + voorschot stookkosten € 100,34,- en de eventuele VvE bijdrage voor de parkeerplaats € 16,-. 
•	Parkeren: Op eigen parkeerplaats op parkeerdek of met parkeervergunning
•	De verwarming is middels blokverwarming en het warmwater middels een elektrische huurboiler; 
•	Ligging: Rustige straat met een prachtige natuurlijke omgeving en midden in de binnenstad van Gorinchem 
•	Voorzieningen nabij: Scholen, winkels en openbaar vervoer zijn allemaal binnen handbereik. Met de auto bereikt u de A15 en A27 binnen 5 minuten.
•	Historisch én modern: Combineer het karakter van de historische vestingstad met de luxe van moderne wooncomfort.
Laat deze kans niet aan je voorbijgaan! Plan snel een bezichtiging en maak van deze prachtige maisonnette jouw nieuwe thuis. Hier voelt wonen écht als thuiskomen!
Eigen verhaal bewoner
Mijn eerste kennismaking met dit appartement, kan ik me nog goed herinneren. Ik wist gelijk dat ik me hier thuis zou gaan voelen. Een ruim appartement met veel lichtinval. Een groot balkon waar je lekker van de zon kan genieten. Een mooi uitzicht vanaf het balkon met de kerktorens, het groen langs de vestingwal en de mooie kleuren in de lucht net voordat de zon ondergaat.
Het is hier fijn wonen. Midden in de binnenstad, maar toch op een rustige plek. Winkels, restaurantjes en gezellige terrasjes op loopafstand. Als je zin hebt in een mooie wandeling, sta je binnen enkele minuten op de vestingwallen. Wat ik ook erg fijn vind, is mijn parkeerplaats bij het appartement. Echt een luxe, een eigen parkeerplaats bij je woning in de binnenstad. 
Ik ga dit plekje enorm missen, maar hoop dat de volgende eigenaar met minstens zo veel plezier in dit appartement zal wonen als ik altijd heb gedaan.
         
     
        Plattegronden
            
                
                
                    171048454_481909_rosmolen_begane_grond_first_design_20250410_606e91.jpg
                
             
            
                
                
                    171048454_481909_rosmolen_eerste_verdiepi_first_design_20250410_3a636a.jpg
                
             
            
                
                
                    171048454_481909_rosmolen_berging_first_design_20250410_03756d.jpg
                
             
            
                
                
                    171048454-277101979-se-127440664-1744297003215.png
                
             
            
                
                
                    171048454-277105588-se-127440664-1744297003215.png
                
             
            
                
                
                    171048454-277106359-se-127440664-1744297003215.png