Beschrijving
Karaktervolle jaren 30 twee-onder-een-kapwoning met diepe tuin en eigen oprit
Op zoek naar een sfeervolle woning met karakter, ruimte en de mogelijkheid om er jouw eigen droomhuis van te maken? Aan de geliefde Nieuwe Hoven in Gorinchem staat deze charmante twee-onder-een-kapwoning uit 1929. Met authentieke details zoals glas-in-loodramen, een ruime woonkamer met open haard, vier slaapkamers en een diepe achtertuin met veel privacy biedt deze woning een prachtige basis voor comfortabel wonen.
De woning ademt de charme van de jaren 30, terwijl de indeling en ruimte volop mogelijkheden bieden om het geheel naar eigen smaak te moderniseren.
Wonen met sfeer en licht
Bij binnenkomst word je verwelkomd in de hal met trapopgang en toiletruimte. Vanuit hier betreed je de ruime woonkamer waar direct de prettige lichtinval opvalt. Grote raampartijen aan zowel de voor- als achterzijde zorgen voor een open en lichte sfeer. De gezellige open haard vormt het hart van de woonkamer en maakt deze ruimte tot een heerlijke plek om samen te komen en te ontspannen.
Leefkeuken met uitzicht op de tuin
Aan de achterzijde van de woning bevindt zich de keuken, die in open verbinding staat met het eetgedeelte. Hier is ruimte voor een gezellige eethoek waar je uitkijkt op de tuin. De keuken beschikt over diverse opbergmogelijkheden en een bar met zitplaatsen, ideaal voor een snelle koffie in de ochtend of een goed gesprek tijdens het koken. Aansluitend vind je de praktische bijkeuken met aansluitingen voor wasmachine en droger.
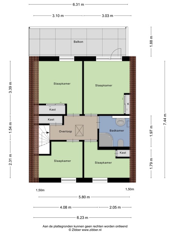
Vier slaapkamers
Op de eerste verdieping bevinden zich vier slaapkamers. De kamers zijn licht en praktisch ingedeeld, waardoor ze geschikt zijn als slaap-, werk- of hobbykamer.
De badkamer is voorzien van een douche, wastafel en toilet. Daarnaast is er via een van de slaapkamers toegang tot het balkon aan de achterzijde van de woning.
Buitenleven
De achtertuin is diep en biedt veel privacy. Dankzij de goede zonligging kun je hier op verschillende plekken van de zon genieten. De tuin biedt volop mogelijkheden voor een ruim terras, een groene tuin of een speelplek voor kinderen. Achter in de tuin staat een stenen berging, ideaal voor fietsen, gereedschap of hobbyruimte. Aan de voorzijde van de woning bevindt zich een eigen oprit met parkeergelegenheid op eigen terrein.
Fijne woonomgeving
De woning ligt aan de Nieuwe Hoven, een straat met eenrichtingsverkeer in een groene en prettige woonomgeving. Op korte afstand bevinden zich de historische binnenstad van Gorinchem, winkels, scholen en het treinstation. Ook het park Lindenlaantje ligt op loopafstand. Hier woon je rustig, maar met alle voorzieningen binnen handbereik.
Kenmerken
• Bouwjaar: 1929
• Woonoppervlakte: ca. 101 m²
• Inhoud: ca. 356 m³
• Perceeloppervlakte: 267 m²
• Vier slaapkamers
• Ruime en lichte woonkamer met open haard
• Keuken met bar en bijkeuken
• Balkon aan de achterzijde
• Diepe achtertuin met stenen berging
• Eigen oprit met parkeergelegenheid
• Authentieke details zoals glas-in-loodramen
• Energielabel E
• Oplevering in overleg, mogelijk op korte termijn
Plattegronden
179076736_1584752_nieuw_begane_grond_first_design_20251108_74b19a.jpg
179076736_1584752_nieuw_kelder_first_design_20251108_50c894.jpg
179076736_1584752_nieuw_eerste_verdiepi_first_design_20251108_27ba0f.jpg
179076736_1584752_nieuw_berging_first_design_20251108_f3223c.jpg
179076736-291063532-se-142966507-1762626161134.png
179076736-291081793-se-142966507-1762626161134.png