Beschrijving
Open Huis
• Dinsdag 2 december van 15.30 tot 17.00 uur
• Woensdag 3 december van 15.30 tot 17.00 uur
Kom het vooral zelf ervaren tijdens de open dagen. Je bent van harte welkom om zonder afspraak binnen te lopen. De koffie met iets lekkers staat al klaar.
Ontdek de ruimte, rust en mogelijkheden van Nicolaas Pieckstraat 11, een verrassend royale jaren 60 hoekwoning in de geliefde Haarwijk.
Dit is de perfecte kans voor wie op zoek is naar een comfortabele gezinswoning vol potentie op een van de mooiste plekken van Gorinchem, vlakbij de Gorkumse binnenstad.
De woning
Op een ruim perceel van 166 m² staat deze solide hoekwoning met voor- en achtertuin én een vrijstaande garage. De diepe achtertuin ligt pal op het zuiden en biedt de hele dag zon. Hier kun je ontspannen, tuinieren of lange zomeravonden vieren met vrienden en familie.
Met maar liefst vier woonlagen, een woonoppervlak van ruim 140 m² en in totaal zes slaapkamers is deze woning een zeldzame vondst. Grote gezinnen, thuiswerkers of hobbyisten krijgen hier álle ruimte die ze nodig hebben. De indeling is praktisch en overzichtelijk en biedt volop gelegenheid om jouw eigen woonwensen te realiseren.
Indeling
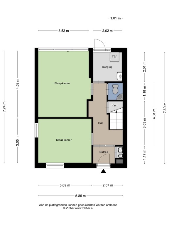
Begane grond
Via de entree kom je in de gang met toegang tot het toilet, een bijkeuken met CV-opstelling en twee slaapkamers. De ruime slaapkamer aan de achterzijde heeft directe toegang via een aluminium schuifpui tot de zonnige tuin. Dit maakt de begane grond ideaal voor bijvoorbeeld een werkruimte, praktijk aan huis of een slaapkamer voor iemand die graag gelijkvloers woont.
Eerste verdieping
De trap leidt naar de eerste verdieping met een tweede toiletruimte en een keuken. De woonkamer strekt zich uit over de volledige verdieping en beschikt aan de voorzijde over een charmant Frans balkon en aan de achterzijde over een tweede balkon. Deze verdieping vormt het sociale hart van het huis, waar je met het hele gezin geniet van licht, ruimte en een vrij uitzicht.
Tweede verdieping
Hier bevinden zich drie slaapkamers, waarvan twee royaal van formaat. De slaapkamer aan de achterzijde beschikt over een eigen balkon. Een kunststof schuifpui geeft toegang hiertoe. Verder vind je op deze verdieping de badkamer met douchecabine, wastafel en een toilet.
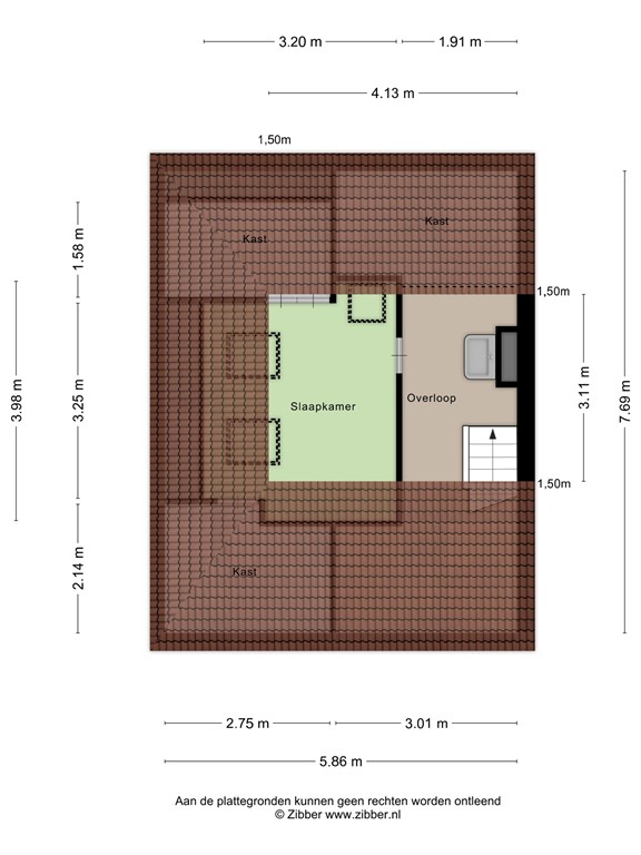
Zolder
Een vaste trap leidt naar de zolder, waar zich nog een extra slaapkamer, werkplek of speelzolder aanwezig is.
De tuin
De achtertuin op het zuiden is een waar paradijs voor liefhebbers van buitenleven. De groene heggen zorgen voor rust en privacy, terwijl de zon de hele dag rond de woning draait. Hier creëer je gemakkelijk jouw eigen fijne buitenruimte, van loungeset tot moestuin tot barbecuehoek. Achterin de tuin staat een houten berging.
De garage
De vrijstaande garage, tegen een meerprijs van € 30.000,--, naast het huis is een absolute plus. Perfect voor de auto, extra opslag of om te gebruiken als hobbyruimte. De garage is voorzien van electra. De mogelijkheden zijn eindeloos.
Wonen in de Haarwijk
De Haarwijk staat bekend als een groene en levendige wijk met een ideale ligging aan de rand van de stad. Je woont hier heerlijk rustig, terwijl alle dagelijkse voorzieningen binnen loop- of fietsafstand te bereiken zijn. Ook ben je met de auto in een mum van tijd op de A15 en A27, waardoor steden als Utrecht, Rotterdam en Breda uitstekend bereikbaar zijn. De perfecte balans tussen rust en dynamiek.
Waarom deze woning uniek is ?
- Praktische indeling en jaren 60 degelijkheid vormen een solide basis voor modern wooncomfort.
- Zes slaapkamers bieden ongekend veel ruimte voor het hele gezin.
- De diepe, zonnige tuin op het zuiden is een heerlijke plek om te ontspannen.
- De groene, rustige Haarwijk ligt ideaal ten opzichte van het centrum en de uitvalswegen.
Kenmerken
- Bouwjaar 1967
- Woonoppervlak 140,6 m²
- Inhoud 497 m³
- Perceeloppervlakte 166 m², 23 m2 garage en een deel van de bestrating voor de garages van 153 m2
- Energielabel C, cv ketel Remeha 2017 en grotendeels kunststof kozijnen met HR ++ glas.
- Tegen een meerprijs van € 30.000,-- is het mogelijk ook de garage te verwerven
- Oplevering op korte termijn mogelijk
Wacht niet langer en ontdek zelf de ruimte, rust en potentie van Nicolaas Pieckstraat 11.
Plan vandaag nog een bezichtiging en laat je verrassen door deze royale, sfeervolle woning op een absolute toplocatie in Gorinchem.
Nicolaas Pieck
Nicolaas Pieck was een van de Martelaren van Gorcum, een groep van negentien katholieke geestelijken die in 1572 tijdens de Tachtigjarige Oorlog door de watergeuzen werden opgepakt, gemarteld en opgehangen in Brielle.
Wie was hij?
Nicolaas Pieck (1534–1572) was een rooms-katholieke Franciscaan, geboren in Gorkum. Hij was bekend als een vredelievende en toegewijde priester.
Wat gebeurde er?
In 1572 veroverden de watergeuzen Gorkum en namen ze een groep katholieke geestelijken gevangen. Ze probeerden hen te dwingen hun geloof af te zweren. Nicolaas Pieck bleef, net als de anderen, weigeren zijn geloof op te geven.
Op 9 juli 1572 werden ze in Den Briel geëxecuteerd.
Waarom is hij bekend?
In 1867 werd Nicolaas Pieck door de paus heilig verklaard samen met de andere martelaren.
In Gorkum en omgeving zijn meerdere straten, kerken en standbeelden naar hem vernoemd, waaronder dus de Nicolaas Pieckstraat.
Plattegronden
179276410_1584990_nicol_begane_grond_first_design_20251124_8b1400.jpg
179276410_1584990_nicol_eerste_verdiepi_first_design_20251124_df1708.jpg
179276410_1584990_nicol_tweede_verdiepi_first_design_20251124_1db99a.jpg
179276410_1584990_nicol_derde_verdiepin_first_design_20251124_c8200f.jpg
179276410_1584990_nicol_berging_first_design_20251124_c5788a.jpg
179276410_1584990_nicol_garage_first_design_20251124_f1cc4c.jpg
179276410-291405184-se-144092011-1763964376568.png
179276410-291407503-se-144092011-1763964376568.png
179276410-291408172-se-144092011-1763964376568.png
179276410-291408913-se-144092011-1763964376568.png
179276410-291409069-se-144092011-1763964376568.png
179276410-291389143-se-144092011-1763964376568.png