Beschrijving
Karaktervolle 2-onder-1-kapwoning met grote tuin, garage en duurzame voorzieningen
Een woning met sfeer, comfort én duurzaamheid – dat is precies wat je vindt aan de Mollenburgseweg 61 in Gorinchem. Deze charmante 2-onder-1-kapwoning combineert de gezelligheid van een jaren ’30-stijl met moderne gemakken en toekomstbestendige voorzieningen. Van de lichte woonkamer met erker en glas-in-loodramen tot de royale tuin met garage en terrassen: hier ervaar je wonen op z’n best.
Woonkamer & keuken
Bij binnenkomst valt meteen de ruime en lichte woonkamer op. Dankzij de grote erker met glas-in-loodramen komt er veel natuurlijk licht binnen, wat de kamer een warme en uitnodigende uitstraling geeft. De open indeling zorgt ervoor dat de woonkamer en keuken naadloos in elkaar overlopen – ideaal voor wie houdt van gezelligheid en contact tijdens het koken.
De moderne keuken is strak afgewerkt en uitgerust met inbouwapparatuur. Hier is plek genoeg om uitgebreid te koken, samen te ontbijten aan de eettafel of een avond met vrienden te borrelen. De vloerverwarming op de begane grond zorgt voor een comfortabele warmte en maakt radiatoren grotendeels overbodig, waardoor het geheel ruimtelijk aanvoelt.
Slaapkamers & badkamer
Op de eerste verdieping bevinden zich drie slaapkamers, elk met hun eigen karakter. De kamers zijn licht en ruim, ideaal als master bedroom, kinderkamer of thuiskantoor. Eén van de kamers heeft zelfs toegang tot een balkon, waar je in de ochtend van de eerste zonnestralen kunt genieten. De badkamer is praktisch en compleet ingericht met een douche, ligbad wastafelmeubel en toilet. Alles wat je nodig hebt voor een frisse start van de dag.
Buitenleven
De tuin is een waar pluspunt van deze woning. Aan de voorzijde vind je een ruime oprit met laadpunt voor een elektrische auto. Aan de achterzijde ligt een royale en verrassend groene tuin met meerdere terrassen, sfeervolle beplanting, fruitbomen en zelfs een vleugje mediterrane sfeer dankzij de palmbomen.
Of je nu wilt ontspannen in de zon, samen eten in de schaduw van de bomen of de kinderen lekker buiten wilt laten spelen: deze tuin biedt volop mogelijkheden.
Locatie
De Mollenburgseweg ligt in een rustige en groene woonwijk, met alle voorzieningen binnen handbereik. Scholen, sportclubs, supermarkten en winkels zijn vlakbij. Bovendien fiets je zo naar de historische binnenstad van Gorinchem, met haar gezellige terrassen, horeca en prachtige vestingwerken. Dankzij de gunstige ligging ten opzichte van de A15 en A27 ben je ook binnen korte tijd in steden als Utrecht, Breda en Rotterdam.
Bijzonderheden op een rij:
• Bouwjaar 1932
• Woonoppervlakte 128 m², perceel 412 m²
• Ruime lichte woonkamer
• Luxe woonkeuken
• 3 slaapkamers
• Laadpunt voor elektrische auto
• 18 zonnepanelen
• Energielabel C
• CV uit 2009. Is huur, contract kan worden overgenomen.
• Oplevering in overleg
De Mollenburgseweg 61 is een karaktervolle, ruime en duurzame woning met een grote tuin en garage. Een ideale plek voor wie sfeervol en toekomstbestendig wil wonen, op een centrale locatie in Gorinchem.
Maak snel een afspraak voor een bezichtiging en laat je verrassen door de ruimte, sfeer en mogelijkheden van deze prachtige woning!
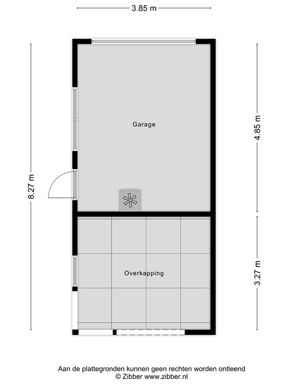
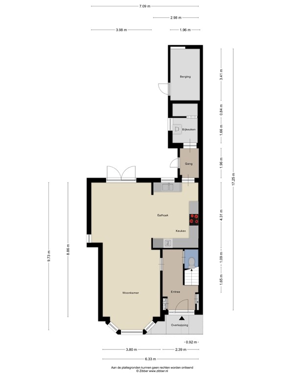
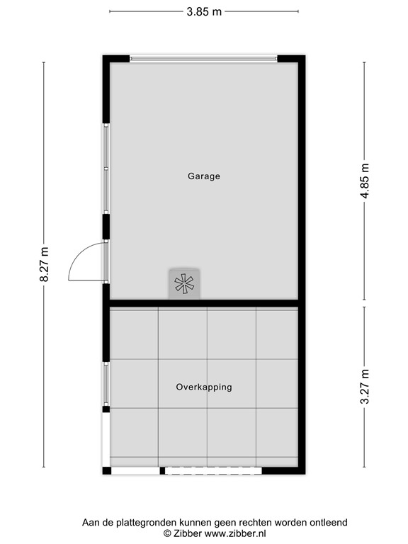
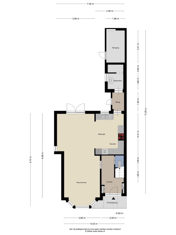
Plattegronden
177038728_1578777_molle_begane_grond_first_design_20250919_579d78.jpg
177038728_1578777_molle_eerste_verdiepi_first_design_20250919_4a2917.jpg
177038728_1578777_molle_zolder_first_design_20250919_9fa621.jpg
177038728_1578777_molle_garage_first_design_20250919_44cd9c.jpg
177038728_1578777_molle_kas_first_design_20250919_823d67.jpg
177038728_1578777_molle_overkapping_first_design_20250919_8ff4ac.jpg