Beschrijving

Open Huis; 7 mei van 15.00-16.30 uur . Je kunt zonder afspraak binnenlopen.

Wonen in het hart van historisch Gorinchem? Dit instapklare appartement heeft alles binnen handbereik.

Midden in het bruisende centrum van Gorinchem ligt dit fraai afgewerkte en uitstekend onderhouden eenkamer appartement op de vierde verdieping van een prachtig monumentaal pand met een geweldig uitzicht op de binnenstad.

Hier woon je op een unieke locatie waar sfeer, comfort en stadsleven perfect samenkomen. Vanuit de voordeur stap je direct de gezellige winkelstraten, terrassen en restaurants in, terwijl rust en natuur op korte loopafstand te vinden zijn bij de vestingwallen en Buiten de Waterpoort.

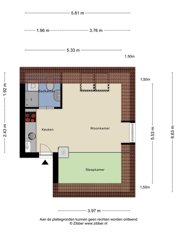
Met een woonoppervlakte van circa 27 m² is dit appartement slim ingedeeld en verrassend licht. De hoge openslaande ramen zorgen voor veel daglicht en geven de woning een ruimtelijk en karaktervol gevoel. De woon- en slaapruimte vormt een sfeervol geheel waarin je comfortabel kunt wonen en ontspannen.

De open keuken sluit naadloos aan op de leefruimte en is voorzien van een gaskookplaat, vaatwasser. spoelbak en afzuigkap. Aangrenzend bevindt zich de nette, volledig betegelde badkamer met douche, wastafelmeubel, spiegelkast, zwevend toilet en aansluiting voor de wasmachine. 

Daarnaast beschik je over een praktische bergruimte op de verdieping, ideaal voor extra opslag.

Waarom dit appartement zo aantrekkelijk is?

• Instapklaar en goed onderhouden
• Gelegen in een karakteristiek monumentaal pand
• Midden in het gezellige centrum van Gorinchem, prachtig uitzicht over de binnenstad
• Veel lichtinval door hoge openslaande ramen
• Eigen keuken en complete badkamer
• Energielabel C voorlopig
• Lage servicekosten van € 60,57 per maand exclusief stookkosten
• Centrale ligging nabij A27 en A15

Kenmerken:
- Bouwjaar: 1850
- Woonoppervlakte: 27 m2
- Energielabel: C voorlopig, HR ++ glas, cv uit 2025
- Kuntstof kozijnen en ramen

Wonen in Gorinchem betekent genieten van historie én gemak.

Deze prachtige vestingstad, verkozen tot mooiste vestingstad van Nederland, biedt een unieke combinatie van sfeervolle straatjes, gezellige horeca, winkels, cultuur en uitstekende bereikbaarheid. 

Binnen circa 30 minuten bereik je steden als Utrecht, Breda, Rotterdam en Den Bosch.

Ben jij starter, student, alleenstaande of zoek je een slimme investering op toplocatie? Dan is dit jouw kans.

Plan vandaag nog een bezichtiging en ervaar zelf de charme van wonen in hartje Gorinchem.

Kenmerken