| Prijs | € 500.000,- k.k. |
| Type object | Woonhuis, eengezinswoning, tussenwoning, splitlevelwoning |
| Perceeloppervlakte | 129 m² |
| Woonoppervlakte | 113 m² |
| Aanvaarding | In overleg |
| Status | Nieuw in verkoop |
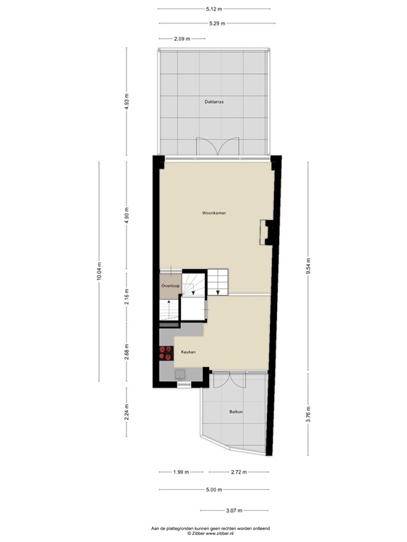
Open huis op maandag 13 april 2026 tussen 15.00 uur en 16.30 uur. Je kan zonder afspraak komen kijken. Uiteraard zijn individuele bezichtigingen ook mogelijk, bel of mail ons dan voor een afspraak. Exclusief wonen in Gorinchem – een unieke energiezuinige split-level woning met karakter, ruimte en luxe Bent u op zoek naar een woning die zich écht onderscheidt van de rest? Dan is deze bijzondere split-level woning in Gorinchem precies wat u zoekt. Geen standaard huis, maar een, onder architectuur, ontworpen woning met een speelse indeling, hoogwaardige afwerking en een woonbeleving die u elke dag opnieuw zult waarderen. Een woning die indruk maakt Zodra u binnenstapt, ervaart u het direct: ruimte, licht en luxe. De indrukwekkende plafondhoogte van maar liefst 4 meter in de woonkamer zorgt voor een open en exclusieve uitstraling die u zelden tegenkomt. De woonkamer is een absolute eyecatcher en professioneel ingericht door een binnenhuisarchitect. De volledig glazen achtergevel over de volledige hoogte zorgt voor een spectaculaire lichtinval en een naadloze verbinding tussen binnen en buiten. Altijd een plek in de zon De woning is perfect gepositioneerd ten opzichte van de zon: • ’s Ochtends geniet u van uw koffie op het voorterras bij de keuken, gelegen op het oosten • ’s Middags en ’s avonds verplaatst het buitenleven zich naar de grote zonnige terrastuin aan de achterzijde gelegen op het westen Zo heeft u op elk moment van de dag een fijne plek om te ontspannen, met volop privacy en groen uitzicht. Comfort, duurzaamheid en luxe Deze woning is volledig voorbereid op de toekomst en biedt alles wat u zich kunt wensen: • Volledig gasloos en voorzien van een all-electric warmtepomp (2024) • 15 zonnepanelen voor lage energiekosten • Airconditioning en waterontharder • Sfeervolle open haard • Alarmsysteem en beveiligingscamera’s • Eigen oprit met ruimte voor twee auto’s + laadpaal • Badkamer vernieuwd in 2024 • Mechanische ventilatie vernieuwd in 2025 Indeling met ruimte en functionaliteit De speelse split-level indeling zorgt voor een dynamische en ruimtelijke woonervaring: • Royale woonkamer met toegang tot het zonnige terras • Moderne open keuken met eetgedeelte en balkon • Drie ruime slaapkamers op de verdieping • Luxe badkamer met bad en tweede toilet • Extra separaat toilet op de begane grond • Inpandige garage en praktische bijkeuken Alles is tot in detail afgewerkt, inclusief horren op alle ramen en deuren en buitenkranen aan zowel de voor- als achterzijde. Bijzonderheden • Bouwjaar woning: 2000 • Woonoppervlakte: ca. 113 m² • Perceeloppervlakte: ca. 129 m² • Energielabel: A++, 15 zonnepanelen , all electric warmtepomp, airconditioning • Radiatoren? • Sfeervolle open haard • Waterontharder • Badkamer; 2024 • Parkeren op eigen terrein voor twee auto’s mogelijk (eigen laadpaal) • Oplevering in overleg Instapklaar en direct te betrekken Wat deze woning extra bijzonder maakt: u kunt hier zó in. Alles is al gedaan. Desgewenst kan de woning zelfs volledig gemeubileerd worden overgenomen. Dat betekent verhuizen zonder zorgen. INDELING BEGANE GROND Entree, hal, trapopgang, meterkast en toiletruimte. Vanuit de hal is de inpandige garage bereikbaar. Het trappenhuis biedt toegang tot de woonkamer, de keuken en trapopgang verder naar boven. In de garage bevinden zich ook de aansluitingen voor de wasmachine en droger. De garage is zowel vanuit de hal bereikbaar als via de automatische paneeldeur. De laadpaal voor de elektrische auto aan de voorgevel is ter overname. INDELING EERSTE VERDIEPING (SPLIT-LEVEL) De royale, tuingerichte woonkamer op de eerste verdieping is voorzien van een prachtige glazen pui met openslaande deuren naar de tuin (voorzien van dubbele hordeur). Met een plafondhoogte van ruim 4 meter en een grote raampartij ontstaat er een ruimtelijk effect en een overvloed aan natuurlijk licht. De splitlevel-indeling voegt extra charme toe. Via de openslaande deuren bereik je de zonnige terrastuin van 30m² op het westen, zonder directe achterburen en met uitzicht op een groene strook. Hier is volop ruimte om een gezellige lounge plek te creëren. Via een eikenhout trap bereik je de open keuken en het eetgedeelte. De moderne halfopen keuken, gelegen aan de voorzijde van de woning, heeft een royale U-vormige opstelling met witte kastfronten gecombineerd met een hardstenen aanrechtblad en diverse inbouwapparatuur. De keuken staat in open verbinding met de eetkamer, waar voldoende ruimte is voor een eettafel. Openslaande deuren (voorzien van dubbele hordeur) bieden directe toegang tot een heerlijk tweede balkon terras van 10m² op het oosten aan de voorzijde, waar je op een mooie zomerdag kunt ontbijten. In de middag kun je genieten van de zon op het tweede terras aan de achterzijde, zodat er altijd een zonnige plek te vinden is. Vanuit de keuken is er ook een deur naar het trappenhuis. INDELING TWEEDE VERDIEPING De tweede verdieping biedt een praktische overloop met een vaste kast voor de warmtepomp en de mechanische ventilatie, drie ruime slaapkamers en een moderne badkamer. Twee slaapkamers bevinden zich aan de achterzijde, de master bedroom bevindt zich aan de voorzijde. De badkamer, beschikt over een bad, een zwevend tweede toilet en een elegant wastafelmeubel met een grote verlichte spiegel en een wandfohn. Deze verdieping combineert functionaliteit met comfort, waardoor het een aangename en praktische ruimte is voor het hele gezin. Kortom een unieke instapklare woning welke recent is gerenoveerd, je kan hier zo in. Wonen in Gorinchem: centraal, sfeervol en compleet Gorinchem staat bekend als één van de mooiste vestingsteden van Nederland. U woont hier in een stad waar historie en modern comfort samenkomen. De sfeervolle binnenstad met gezellige horeca, winkels en terrassen ligt op korte afstand, terwijl u tegelijkertijd profiteert van rust en ruimte in uw eigen woonomgeving. Daarnaast is de ligging ideaal: centraal in Nederland met uitstekende verbindingen richting Utrecht, Rotterdam en Breda. Of u nu werkt in de Randstad of juist houdt van natuur en water, vanuit Gorinchem bent u overal zo. Samengevat Een unieke kans om te wonen in een luxe, instapklare split-level woning in het prachtige Gorinchem. Met een perfecte combinatie van ruimte, licht, comfort en een toplocatie is dit een woning die u gezien moet hebben. Interesse? Plan snel een bezichtiging en ervaar zelf de unieke sfeer en kwaliteit van deze bijzondere woning.
| Referentienummer | 00278 |
| Vraagprijs | € 500.000,- k.k. |
| Elektra | € 100,- |
| Water | € 24,- |
| Inrichting | Optioneel |
| Status | Nieuw in verkoop |
| Aanvaarding | In overleg |
| Aangeboden sinds | Vrijdag 27 maart 2026 |
| Type object | Woonhuis, eengezinswoning, tussenwoning, splitlevelwoning |
| Soort bouw | Bestaande bouw |
| Bouwperiode | 2000 |
| Dakbedekking | Bitumen |
| Type dak | Platdak |
| Isolatievormen | HR-glas Volledig geïsoleerd |
| Perceeloppervlakte | 129 m² |
| Woonoppervlakte | 113 m² |
| Inhoud | 451 m³ |
| Oppervlakte overige inpandige ruimten | 15 m² |
| Oppervlakte gebouwgebonden buitenruimte | 35,5 m² |
| Aantal bouwlagen | 3 |
| Aantal kamers | 4 (waarvan 3 slaapkamers) |
| Aantal badkamers | 1 (en 1 apart toilet) |
| Ligging | Aan rustige weg Dichtbij openbaar vervoer In woonwijk Nabij school Nabij snelweg Vrij uitzicht |
| Type | Achtertuin |
| Hoofdtuin | Ja |
| Oriëntering | West |
| Staat | Goed onderhouden |
| Energielabel | A++ |
| Aantal parkeerplaatsen | 3 |
| Aantal overdekte parkeerplaatsen | 1 |
| Warm water | Elektrische boiler |
| Verwarmingssysteem | Airconditioning Open haard Warmtepomp |
| Ventilatie methode | Balansventilatie Mechanische ventilatie |
| Badkamervoorzieningen | Ligbad Toilet Wastafelmeubel |
| Parkeergelegenheid | Garage |
| Heeft airco | Ja |
| Heeft een alarm | Ja |
| Heeft een balkon | Ja |
| Heeft een open haard | Ja |
| Tuin aanwezig | Ja |
| Heeft een garage | Ja |
| Heeft zonnepanelen | Ja |
| Heeft ventilatie | Ja |
| Kadastrale aanduiding | Gorinchem A 6685 |
| Perceeloppervlakte | 129 m² |
| Omvang | Geheel perceel |
| Eigendomsituatie | Eigen grond |