Beschrijving
Open Huis
• Donderdag 18 december van 13.30 tot 15.00 uur
• Vrijdag 19 december van 15.00 tot 16.30 uur
Kom het vooral zelf ervaren tijdens de open dagen. Je bent van harte welkom om zonder afspraak binnen te lopen.
Royale tussenwoning met zonnige tuin op het zuiden in kindvriendelijke wijk Stalkaarsen
Ben je handig en wil je een huis helemaal naar je eigen smaak maken? Dan is deze ruime tussenwoning precies wat je zoekt. Hier geen kant en klare showroomwoning, maar een fijn huis waar je met wat kluswerk een moderne, comfortabele gezinswoning van maakt. Met vier slaapkamers, energielabel C, kunststof kozijnen en een diepe tuin op het zuiden is dit de ideale basis om jouw woonwensen waar te maken.
Waarom deze woning zo interessant is ?
• Royale, lichte woonkamer met grote raampartijen
• Zonnige achtertuin op het zuiden met veel privacy
• Vier volwaardige slaapkamers
• Kunststof kozijnen met dubbel glas
• Energielabel C voorlopig
• Inpandige berging voor fietsen en opslag
• Rustige, kindvriendelijke woonwijk
• Scholen, winkels en andere voorzieningen op loopafstand
Een huis met potentie dat vraagt om een nieuwe eigenaar die er met plezier de schouders onder zet.
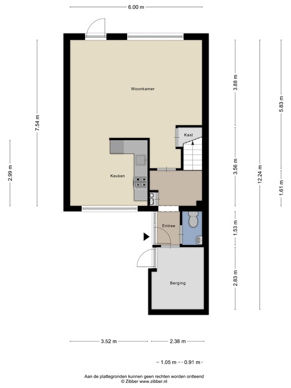
Indeling
Begane grond
Via de voortuin kom je binnen in de hal met toilet, meterkast en toegang tot de inpandige berging. De ruime woonkamer is heerlijk licht dankzij de grote ramen en biedt volop mogelijkheden voor een gezellige zit en een royale eethoek.
Aan de voorzijde ligt de halfopen, functionele keuken. Aan de achterzijde geven de tuindeur en het grote raam uitzicht op de diepe, zonnige tuin. Zie jij hier al voor je hoe het wordt na een kleine verbouwing of een nieuwe keuken?
Eerste verdieping
Op de eerste verdieping vind je drie ruime slaapkamers. De badkamer is eenvoudig uitgevoerd en voorzien van een douche, wastafel en toilet. Dit is een ideale ruimte om helemaal naar eigen smaak te moderniseren.
Tweede verdieping
De tweede verdieping biedt een vierde, volwaardige slaapkamer met dakraam. Perfect als werkplek, sportruimte of logeerkamer. Op de overloop vind je de aansluitingen voor wasmachine en droger en de cv installatie.
Buitenruimte
De achtertuin is een groot pluspunt. Dankzij de ligging op het zuiden geniet je hier de hele dag van de zon. Er is voldoende ruimte voor een loungeset, een grote eettafel en eventueel speelruimte voor kinderen. De tuin heeft een achterom, wat prettig is voor fietsen en tuinspullen.
Locatie
De woning ligt in de geliefde en rustige wijk Stalkaarsen, aan de rand van Gorinchem. Een kindvriendelijke omgeving met speeltuintjes, basisscholen, sportvelden, het ziekenhuis en winkelcentrum Piazza in de buurt. Met de auto rijd je binnen enkele minuten naar de A15 en A27, waardoor steden als Utrecht, Breda en Rotterdam goed bereikbaar zijn.
Kenmerken
• Bouwjaar: 1975
• Woonoppervlakte: ca. 118 m²
• Inhoud: ca. 442 m³
• Perceeloppervlakte: 168 m²
• Energielabel: C voorlopig
• Verwarming: cv installatie
• Oplevering: in overleg
Ben jij handig, creatief en op zoek naar een ruime woning met zonnige tuin op een toplocatie in Gorinchem? Kom dan zeker langs tijdens een van de kijkmiddagen en ontdek zelf de mogelijkheden van deze tussenwoning aan de Dr. Schoyerstraat 91.
Plattegronden
179736097_1593907_dokte_begane_grond_first_design_20251125_6bb794.jpg
179736097_1593907_dokte_eerste_verdiepi_first_design_20251125_a1558b.jpg
179736097_1593907_dokte_tweede_verdiepi_first_design_20251125_8842cd.jpg
179736097-292157707-se-144173518-1764029510571.png
179736097-292175209-se-144173518-1764029510571.png
179736097-292175998-se-144173518-1764029510571.png