Beschrijving
Ruime hoekwoning met prachtige serre en ruime zonnige tuin op het zuiden in geliefde wijk Stalkaarsen
Ben je op zoek naar een instapklare gezinswoning met verrassend veel ruimte, veel lichtinval en een heerlijke tuin? Dan is deze sfeervolle hoekwoning in de populaire wijk Stalkaarsen precies wat je zoekt.
Deze uitstekend onderhouden woning combineert comfort, sfeer en functionaliteit op een toplocatie in Gorinchem.
Met maar liefst vier ruime slaapkamers, een stijlvolle serre met vloerverwarming, moderne badkamer en een zonnige achtertuin van circa 15 meter diep op het zuiden, is dit een woning waar je direct verliefd op wordt.
Waarom deze woning jouw aandacht verdient
• Royale hoekwoning met extra privacy en veel natuurlijke lichtinval
• Prachtige serre met Portugese tegels, met vloerverwarming en openslaande deuren naar de tuin
• Zonnige achtertuin op het zuiden van circa 15 meter diep
• Vier volwaardige slaapkamers verdeeld over drie woonlagen
• Luxe badkamer met inloopdouche en tweede toilet
• Goed onderhouden en voorzien van dubbel glas
• Energielabel C met lage energielasten
• Gezellige open haard
• Rustige en kindvriendelijke woonomgeving nabij alle voorzieningen
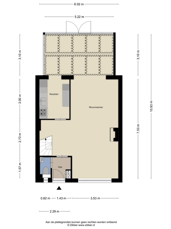
Indeling
Begane grond
Je komt binnen in de nette hal met toilet en toegang tot de royale woonkamer. De sfeervolle houten vloer en de open haard geven direct warmte en karakter. De woonkamer loopt prachtig over in de serre, met vloerverwarming, waar de Portugese tegels zorgen voor een unieke uitstraling. Dankzij de openslaande deuren haal je buiten moeiteloos naar binnen en geniet je optimaal van het tuinleven.
Eerste verdieping
Hier bevinden zich drie ruime slaapkamers, ideaal voor een gezin, thuiswerkplek of hobbyruimte. De luxe badkamer is modern afgewerkt en voorzien van een ruime inloopdouche, stijlvol badkamermeubel en toilet.
Tweede verdieping
Hier vind je een ruime vierde slaapkamer met veel lichtinval. Op de overloop is plaats voor wasmachine, droger en cv-installatie.
Buitenruimte
De zonnige achtertuin ligt op het zuiden en is gesitueerd rondom de woning. De totale perceelgrootte is 290 m2. Er is altijd een plekje in de zon, terwijl er ook voldoende schaduwplekken zijn. Achterin de tuin bevindt zich een ruime berging en een praktische achterom.
Ligging
Deze woning ligt in de geliefde en rustige wijk Stalkaarsen aan de rand van Gorinchem. Op korte afstand vind je scholen, winkels, sportvoorzieningen en het ziekenhuis. Dankzij de gunstige ligging nabij de A15 en A27 ben je bovendien snel onderweg richting Rotterdam, Utrecht en Breda.
Kenmerken
• Bouwjaar: 1975
• Woonoppervlakte: ca. 131 m²
• Inhoud: ca. 462 m³
• Perceeloppervlakte: 290 m²
• Aangebouwde serre met vloerverwarming
• Energielabel: C voorlopig
• Designradiatoren op gehele begane grond en de badkamer
• Open haard
• Badkamer vernieuwd in 2018
• Oplevering in overleg
Maak snel een afspraak !
Zoek jij een ruime, verzorgde woning met sfeer, comfort en een fantastische tuin op een uitstekende locatie? Dan is dit jouw kans.
Plan vandaag nog een bezichtiging en ontdek zelf alles wat deze prachtige hoekwoning te bieden heeft.
Plattegronden
184783510_1642748_dokte_begane_grond_first_design_20260421_d38b75.jpg
184783510_1642748_dokte_eerste_verdiepi_first_design_20260421_bc6376.jpg
184783510_1642748_dokte_tweede_verdiepi_first_design_20260421_f92b64.jpg
184783510_1642748_dokte_berging_first_design_20260421_a96fde.jpg