Beschrijving
Bezichtigen kan tijdens de kijkmiddagen op donderdag 20 november tussen 15.00 uur en 16.30 uur en vrijdagmiddag 21 november tussen 13.00-14.30 uur. U kunt zonder afspraak een kijkje komen nemen.
Royale, instapklare tussenwoning met moderne afwerking en diepe tuin in geliefde wijk Stalkaarsen
Ben je op zoek naar een ruime, sfeervolle woning waar je zó in kunt? Dan mag je deze goed onderhouden tussenwoning in de populaire wijk Stalkaarsen zeker niet missen. Hier geniet je van comfort, licht en ruimte – met maar liefst vier slaapkamers, een moderne open keuken (2020) en een diepe, fraai aangelegde tuin van circa 15 meter.
De woning heeft een frisse, moderne uitstraling en is voorzien van kunststof kozijnen met dubbel glas, een luxe badkamer met ligbad én douche, en energielabel C. Dankzij het uitstekende onderhoud kun je hier direct zorgeloos wonen.
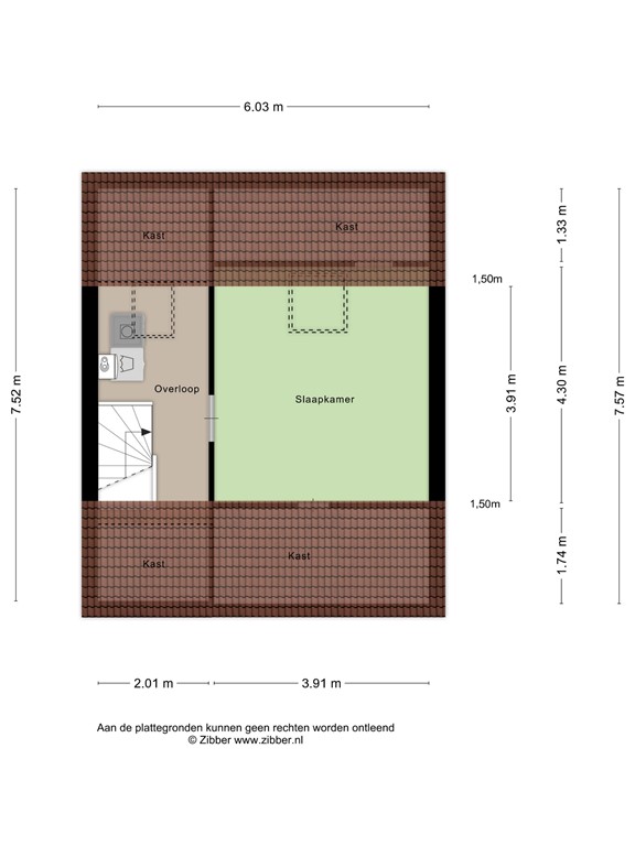
De lichte woonkamer vormt samen met de open keuken het hart van de woning. Op de eerste verdieping vind je drie ruime slaapkamers en een moderne badkamer. De tweede verdieping biedt een volwaardige vierde slaapkamer, plus ruimte voor de wasmachine en cv-installatie.
De achtertuin ligt op het noorden, maar biedt dankzij de diepte de hele dag zon. Achterin vind je een praktische berging en een achterom.
Ligging
De ligging is ideaal: rustig, groen en kindvriendelijk, maar met alle voorzieningen dichtbij. Scholen, winkels, sportvoorzieningen en het ziekenhuis liggen op loopafstand. Bovendien ben je dankzij de A15 en A27 snel in andere steden.
Kortom: een instapklare, verrassend ruime woning op een heerlijke plek. Plan snel een bezichtiging – dit is een kans die je niet wilt laten lopen!
Kenmerken op een rij:
- Bouwjaar: 1975
- Woonoppervlakte: ca. 115 m²
- Bruto vloeroppervlak: ca. 154 m²
- Inhoud: ca. 406 m³
- Perceeloppervlakte: 152 m²
- Energielabel: C
- Oplevering in overleg
Ben jij op zoek naar een instapklare woning met veel ruimte, licht en comfort? Wacht dan niet langer en plan snel een bezichtiging in – deze buitenkans wil je niet missen!
Plattegronden
177020956_1575280_dokte_begane_grond_first_design_20250918_88f0f3.jpg
177020956_1575280_dokte_eerste_verdiepi_first_design_20250918_5200b3.jpg
177020956_1575280_dokte_tweede_verdiepi_first_design_20250918_fb455c.jpg
177020956_1575280_dokte_berging_first_design_20250918_5c3551.jpg